Work starts on development of 155 new sustainable homes in Takeley

Work has started on a 155-home development in Takeley that will include a range of sustainability features.

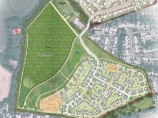
Bellway was granted detailed planning permission for its Trinity Green development, on land west of Garnetts, by Uttlesford District Council on in March.

The properties will be built using an environmentally friendly timber-frame construction method and they will all be heated by electric air source heat pumps and have electric vehicle charging points.

These measures are expected to mean a reduction in carbon emissions of 62.33 per cent compared to the requirements of building regulations.

Sales Director for Bellway Essex Mary O’Sullivan said:
“We have worked very closely and constructively with Uttlesford District Council and the Uttlesford Quality Review Panel to create a development plan that meets the needs of the community and does so in a well-thought-through and sustainable way.

“We set out to create a neighbourhood that respects the unique rural quality of this area and especially the surroundings and views of the Grade I listed Holy Trinity Church, and our plans will achieve this.

“With local investment connected to the development totalling more than £2.4 million, and the provision of more than 60 affordable homes and acres of public open space, Trinity Green will bring significant benefits to its new residents and the wider community.

“This is a very desirable location within a 20-minute drive of Bishop’s Stortford town centre and less than 10 minutes from Stansted Airport, so it is very well connected too.”

There will be 62 affordable homes at Trinity Green ranging from one-bedroom apartments to four-bedroom houses – this is 40 per cent of the total number of properties. The private homes will range from two to five-bedroom houses.

Bellway has committed to investing more than £2.4 million in local infrastructure and services as part of its planning agreement and this includes £1.4 million for education and more than £590,000 for sustainable transport.

There will be 10 acres of public open space including an off-lead dog area and a circular dog walking route with the development, while Bellway will also upgrade a play area next to the site.

To find out more about Trinity Green, visit https://www.bellway.co.uk/new-homes/essex/trinity-green or call the sales team on 01279 743414.